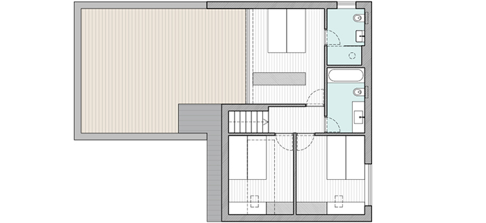
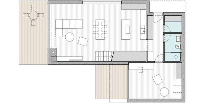
Půdorysy

Přízemí

První patro

Pohled A

Pohled B

 

Pozemek a dům 2

Zastavěná plocha

124,4 m2

Užitná plocha

141,4 m2

Pozemek

864 m2

Cena

Na vyžádání

Standardy

Standardy a design

Naše domy jsou postaveny podle nejvyšších stavebních standardů ve spolupráci s firmou DOMYRIO, která se specializuje na prefabrikované konstrukce. Díky jejich certifikované kvalitě zpracování a rychlé montáži získávají naše domy vynikající kvalitu a spolehlivost. Podrobnější informace o našich stavebních standardech naleznete zde.